

Welcome to your new country paradise—a meticulously designed villa combining timeless elegance and modern amenities.
Located in one of Nice's most exclusive neighborhoods, this villa offers a tranquil retreat with panoramic sea views, a lush private garden, and a sense of privacy. A swimming pool surrounded by greenery completes the idyllic atmosphere.
A timeless home where vintage charm meets Mediterranean sophistication. Here, elegance is unobtrusive. This space speaks not of trends, but of textures, art, and carefully selected details.
A living room with a balcony overlooking the bay. Imagine rooms filled with soft light, aged wood, natural stone, and carefully selected antiques that tell a story. These bedrooms are sanctuaries of the senses, where tenderness envelops you as time slowly fades away. They invite you to be alone, to dream, to surrender to the poetry of silence and touch.
The entrance areas are exquisitely designed: the main entrance leads into a hallway that creates a sense of privacy with an artist, while at the rear lies a lush garden oasis with an additional private exit from the courtyard.
DETAILED INFORMATION
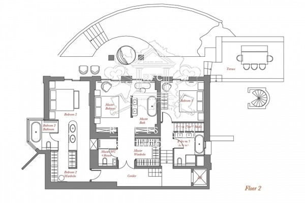
Living area: 380 m²
Land area: 500 m²
Bedrooms: 4
Bathrooms: 4 + separate toilet
Parking: 2
SERVICES
Fireplace, open kitchen, home office, garden, terrace, studio.
100% mortgage, 0.85 - 1.85% APR